熱海来の宮マンション

1,800万円

静岡県熱海市水口町5-41

伊東線「来宮」駅徒歩4分

東海道本線「熱海」駅徒歩18分

価格
1,800万円
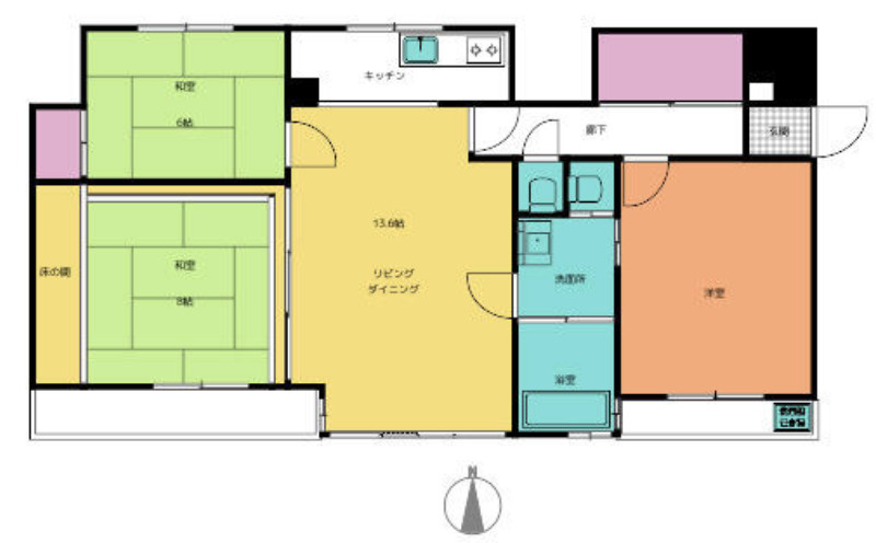
間取り/面積
3LDK/107.39㎡
所在地
静岡県熱海市水口町5-41
築年
1970年7月(築55年)
駐車
空無
交通

伊東線来宮」駅 徒歩4分

東海道本線熱海」駅 徒歩18分

熱海来の宮マンションの基本情報

物件名
熱海来の宮マンション
価格
1,800万円
築年月
1970年7月(築55年)
総戸数
33戸
所在地
静岡県熱海市水口町5-41
交通

伊東線来宮」駅 徒歩4分

東海道本線熱海」駅 徒歩18分

熱海来の宮マンションの詳細情報

設備条件
  • 海が近い
  • エレベーター
設備(その他)
    -
駐車場/月額
空無/-
土地権利
所有権
国土法届出
不要
用途地域
近隣商業
販売戸数 / 総戸数
- / 33戸
管理形態
自主管理
管理員の勤務形態
日勤
管理会社
自主管理
取引態様
仲介
引渡し
相談

熱海来の宮マンションで募集中の物件

  1. 8階

    32.48坪 (107.39㎡)

    1,800万円(55.42万円/坪)

周辺施設

  • セブンイレブン熱海中央町店の画像

    コンビニエンスストア

    セブンイレブン熱海中央町店

    365m(5分)

  • マックスバリュ熱海店の画像

    スーパー

    マックスバリュ熱海店

    402m(6分)

  • 熱海郵便局の画像

    その他

    熱海郵便局

    443m(6分)

  • 静岡銀行熱海支店の画像

    銀行

    静岡銀行熱海支店

    579m(8分)

  • 熱海市役所の画像

    市役所・区役所

    熱海市役所

    601m(8分)

  • 熱海ゴルフ倶楽部の画像

    その他

    熱海ゴルフ倶楽部

    2535m(32分)

近隣の物件

  1. 熱海市田原本町

    2LDK (75.96㎡)

    4,200万円

  2. 熱海市伊豆山

    3K (63.16㎡)

    690万円

  3. 熱海市相の原町

    1LDK (41.39㎡)

    50万円

  4. 熱海市伊豆山

    1K (31.05㎡)

    290万円

よく見られている物件

  1. 伊東市岡

    3LDK (136.59㎡)

    1,980万円

  2. 伊東市瓶山2丁目

    1DK (34.22㎡)

    10万円

  3. 伊東市岡

    3LDK (130.18㎡)

    2,350万円

  4. 熱海市桃山町

    3K (58.61㎡)

    350万円

熱海来の宮マンション

お気軽にお問い合わせください

LINEからお問い合わせ 無料お問い合わせ

Athletic株式会社 熱海支店

0120-665-596

9:30~18:30

(休:水曜日)